









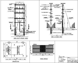
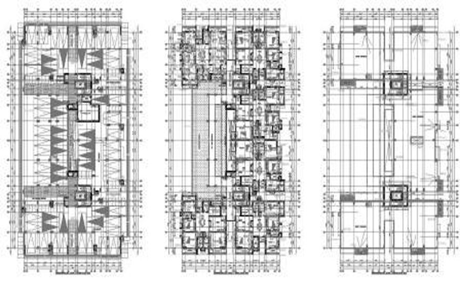
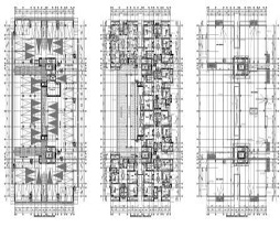
We had to do electrical Designing of an eight storey residential and commercial Building in India, Singapore and Malaysia. It was a multipurpose building with Shops, Supermarkets, Play School, Power GYM and Offices.
We had to prepare Lighting, Power, Power Distribution, Wiring/Conduiting Designs and Drawings. The output was to be sent in AutoCAD 2004 to AutoCAD 2019 version. There was no library sent by the client.
We prepared our own library as per the client requirements. There were around 500 electrical drawings to be completed in a fortnight. The Tiff files sent by the clients were messy which increased the time spent on each drawing. So, to finish the project on time without compromising on quality was one of the challenges faced by our team.
Send us your electrical project requirements today at srkelectricalconsultants@gmail.com